リノベーション 水回り仕様仮決定 バス&洗面化粧台編 ― 2023年01月22日 07:09
さて、水回り関係で妻といっしょに一番悩んだのがバス、お風呂です。
工事業者からの概算見積に載っていたのはTOTOのシステムバスでした。
現在のお風呂はシステムバスではなく、ステンレス深湯船で風呂場はタイル張り、単板ガラスの窓と外に出入りできるアルミドアまであり、窓やドアからガンガン冷気がはいるのでもう冬は寒修行のような寒いお風呂です。
しっかり首まで湯船に浸からないと温まりません(^_^;
今度のお風呂は是非!暖かいお風呂を!と切望しています。
ちなみに・・・かつてのお風呂は薪炊きで結構温かかった記憶がありますが、40年ほど前に灯油ボイラー化、ステンレス&タイル張りとしてとっても明るく綺麗なお風呂で満足だったのですが、冬の寒さには相変わらず参っていました(^_^;
今回はシステムバス、オール電化でエコキュート導入です。
で、暖かなお風呂を目指して窓を小さめで樹脂サッシ&トリプルガラスとしました・・・が、肝心はバスの仕様です・・・
いろいろなアドバイスを受けましたが、暖かなお風呂を使っていると言う方々のアドバイスには一つの共通点がありました。
それはバスタブ(湯船)が鋳物ホーローということです!
ネットでも鋳物ホーローの評判を確認したところ、「暖かい」「湯が冷めない」などの意見がずらり♪
ただ、「値段が高い」とも(^_^;
厚みのある鋳物のバスタブが温まり、蓄熱して冷めにくくなるのが「暖かい」「湯が冷めない」の理由だそうですね。
追い炊きも必要ないくらいということで省エネ効果もあるそうです。
そんなこんなで妻と相談した結果、多少高くてもバスタブは鋳物ホーローにしようと決め、工事業者に仕様変更を頼みました。
さて、鋳物ホーローのお風呂と言えば・・・タカラスタンダードですね(^_^)
そこで、今回ショールームに行って仕様を決めてこようとなったわけです。
また、ついでに洗面化粧台も決めてこようと。
【バス】
先にも書いたように鋳物ホーローといえばタカラスタンダードですよね。
そのシステムバスのシリーズの中で鋳物ホーローバスは最上級の「PREDENCIAプレデンシア」一択しかありません(^_^;
ショールームで現物やサンプルを見ながらシンプルさにこだわって・・・
・浴槽はこだわりの鋳物ホーローで、色は白
浴槽の中に段差あり(小さな孫達が座れるように(^_^))
・室内は明るく・・・白系
・カウンター無し(ホーロー壁面にマグネットで各種棚を後付け)
・ドアは引き戸タイプ(ドアや折り戸タイプは万が一の時に開かないとか、小さな孫達が手を挟むことが無いように・・・)
・浴室暖房乾燥機を付ける(冬の最初の暖かさ確保&湿気防止と雨、冬場の洗濯干し場兼用)
以下がそのシミュレーションですが、正面の浴室パネルのカラーや模様は決めかねたので、まだ仮仕様です(^^ゞ
取りあえず温めな薄いピンク系で(^^ゞ

バスタブは段差ありではありませんが、段差有りをチョイスしています。
また、実際の窓はこれよりかなり小さめの樹脂サッシ&トリプルガラスにしています。
【洗面化粧台】
さて、次にバスの手前にある洗面・脱衣室に設置する洗面化粧台です。
そこには洗濯機や下着類整理棚など置く予定ですし、二人生活なのでコンパクトでシンプルな洗面化粧台とすることにしました。
また、バスにお金をかけたので、ここはコストカット普及品レベルのものとしようと(^_^;
選んだのはタカラスタンダードの「Ondineオンディーヌ」です。
ここは強いこだわりがないので、そのシミュレーションが以下の物です。

実際には横に洗濯機や各種サイド棚が並ぶと思います。
ただし、横の壁にホーローパネルを張ってもらうことにしました。
水はね汚れ防止とマグネットによる各種収納棚を貼り付けたいと思っています(^_^)
リノベーション 水回り仕様仮決定 トイレ編 ― 2023年01月23日 07:13
トイレは業者からの概算見積にTOTOの「ネオレストAS2」が載っていました。
TOTOは世界のブランドとして高い評価を受けているメーカーですが、他のメーカーより高い印象があります。
機能は別として、見積額のカットの一つとしてお安い他のメーカーでも良いのではないかと思っていました。
実は、現在の家は昔ながらの“ぼっとん便所”・・・つまりくみ取り式のままなんです(^_^;
水洗トイレになるだけで御の字なんです(^_^)
もちろん、平生の生活では様々なメーカーの水洗トイレのお世話になっていますが、メーカーの違いによる使い勝手の良さ悪さは特に意識したことがありませんでした(^^ゞ
今回改めてどんなトイレが良いか・・・いろいろな方々にアドバイスをもらいました。
が、ほとんどの方々は「いや〜どこのメーカーも同じじゃないの?」とか、「TOTO、LIXIL、パナ等々、機能的にもそう変わらないでしょう!」の感じです。
じゃぁ、やはりお高いTOTOを選ぶ必要がないよね!ってことで、他のメーカーの安い物を探し始めたのですが・・・
ここで、ある信頼できる施工経験豊富な方から決定的なアドバイスがありました。
「万が一の故障の際に、部品の補給やサービス面で確実なのがTOTO!
実際に修理依頼でTOTO以外のメーカーで部品供給面で痛い目に遭ったことが多々ある。
長い目で見ると素早いアフターケアが重要になるのでTOTOにした方がよい!」
との強いアドバイスでした。
これが決定打となり、トイレはTOTOに決定です(^_^)
後は「ネオレストAS2」で良いかどうか、です。
結論としては、一番人気があるモデルであり、価格もTOTOとしてはリーズナブル、かつ昨年8月にモデルチェンジしたばかりであり、機能改良も進んでいるとのことなのでこのまま「ネオレストAS2」に決定することにしました。
トイレのシミュレーションは以下の通りです。

今の和式の“ぼっとん便所”から大進化で、これで小さな孫達も怖がりません(^^ゞ
以上、水回りの仕様は一部を除きほぼ決定です。
しかし・・・バスタブを高い鋳物ホーローに替えたことにより水回り関係は見積低減どころかupになっている・・・のかな(^_^;
リノベーション 現状・・・断熱材・・・無し!(O_O) ― 2023年01月24日 05:45
現在、耐震改修の工事を行っており、一部建て替えの解体と同時に補強用筋交いや金物&耐力壁の設置のために一部既存の壁や天井をはぐりました。
しかし、現場を見て驚きです!
現状では壁に全く断熱材が入っていないことが分かりました(O_O)
ましてや天井裏や床下にも断熱材が入っていません(T_T)
この家は、昭和36年(1961年)、46年(1971年)、53年(1978年)と増改築を繰り返している記録があるのですが、耐震改修のためにあちこちの壁や天井、床をはぐっても全て断熱材が入っていないのです(^_^;
ご覧のように外壁はトタンで、室内側は断熱材無しで石膏ボードを貼り、壁が塗られているだけの状況でした。
今から40年ほど前に現在住んでいる我が家の増築の際にはガラスウールの断熱材を壁の隙間に埋め込んだのを覚えていますが、確かにこの時も天井や床には断熱材を貼っていませんでしたねぇ・・・
しかし、リノベーション中のこの家は壁にも断熱材が全く無しとは・・・これが日本のかつての古い家では普通だったようです(^_^;
これじゃ昭和の古家は夏暑くて寒い訳です!
ま、これまで車庫兼倉庫として使っていたので全く実害は無かった(とは言え、今住んでいる家も同類なのですが(^_^;)のですが、今後ここに住むことになるのでしっかり断熱材で家を包まないといけないな!と強く実感しました。
今回は工事業者に家の断熱化を強く要望しているので、見積書には以下のように記載してありました。
壁断熱 通常ハウスロン10K → ハウスロン16K
天井断熱 通常ハウスロン10K → ハウスロン16K
床断熱 通常フクフォーム40 → カネライト65
口頭説明でも通常施工より“約1.5倍強化”すると言っています。
ところで、気になったのでこの断熱材はどんな物なのかを確認してみました。
【ハウスロン10K → 16K】
「不燃認定を取得したH28 省エネ基準に対応可能な高性能グラスウールの普及モデル」とあります。
10Kと16Kの違いは密度の10kg/m2と16kg/m2の違いで、熱伝導率や熱抵抗が16Kの方が優れているようですが、その差が
“約1.5倍強化”することとどう繋がるかは素人にはよく分かりません。
が、ガラスウールの密度が上がると熱伝導率が下がり熱抵抗が上がるデータが示されていることから、通常(10K)より16Kの方が断熱性能が良いということだけは分かりました(^^ゞ
【フクフォーム40】→【カネライト65】
フクフォーム40とはポリスチレン発泡体の根太工法用床断熱材で、厚さ45mmの物のようです。
カネライト65とはカネライトフォームという商品名で、やはりポリスチレン発泡体のパネルで、厚さ65mmの物のようです。
どれがどうかはよく分かりませんが、素人目線でも厚さを厚くして断熱性能を上げると言うことではないでしょうか・・・(^^ゞ
ただ工事業者が言っていた「断熱材を通常施工より“約1.5倍強化”する」と言うのは、どうも「断熱材の密度や厚さを通常施工するものより“約1.5倍強化”する」という事だと思われます。
素人ながら断熱性能が上がる方向には間違いないと思われますが、それがどの程度の性能アップに繋がるかは?です。
いずれにしても壁、天井、床ときっちりと施工して断熱強化を期待します。
リノベーション 見積額削減検討 ― 2023年01月27日 10:37
さて…頭の痛い課題です…見積額削減…(^^;
先日出てきた家のリノベーションの概算見積額は予算額から大幅にオーバーしていました。
ただ、各種補助金を予定通り活用できると、もともと考えていた予算額に収まるのですが、なにぶんフルリノベーションなので解体が進むと何が出てくるか(追加工事)分からないこともあり、余裕を見てそれなりに見積額を削っておく必要があります。
もっとも、工事業者へ値引きの増額を迫るのも一つの手なのですが、ここは手抜きや質低下に繋がらないようほんわりと打診程度で止め、先ずは内容見直しによる削減を検討しなければなりません。
で、見積書とにらめっこ…
見積書の項目で建築部材費や加工費はよくわからないので、こちらが要望した仕様や業者が入れてきた仕様の中で金額が大きな項目に先ずは注目してみました。
太陽光発電&蓄電池システム
床暖房
高断熱窓
水回り設備
・・・
・・・
水回りについては、先に書いたように様々なアドバイスやショールーム訪問によってほぼ確定しています。
一方、“省エネ&自家消費型創エネ”や“夏涼しくて冬暖かな家”を成し遂げるには家の高断熱・高気密化、高断熱窓、太陽光発電&蓄電池システム、床暖房は外せません!
この辺りはいろんな方々にアドバイスをいただきましたが、正直相談する人によって意見が様々で、いらぬ混乱の素でした…特にいろんなマイナスアドバイスを聞いた妻からは太陽光発電&蓄電池システム、床暖房なんて本当にいるの?と迫られてしまいました…(^^;
しかし、ここは後々後悔しないためにも自分の考えを主張し続け、何とか当初の計画を堅持しました!
が、見積額を下げるには何か手を打たなくてはいけません。
そこで目を付けたのが…2Fの間取りと内装仕様です。
1Fは我々夫婦二人の生活圏であり変更するつもりは全くありませんが、2Fは客寝室、ファミリースペース、趣味室、納戸で、その用途や間取り、仕上げ仕様について再検討する余地はあります。
<客寝室> 右側、ここは娘たち家族が来た時に必須の部屋
人数からすると8~10畳程度部屋が必要で、沢山の布団類の収納場所も必要
<ファミリースペース> 中央上、これは今の間取りの活用で、子供たちの遊び場兼廊下
<趣味室> 中央下、父の遺品整理や自分のガラクタを扱う趣味室は既存の部屋を利用し内装を新しくする予定
<納戸> 左側、ともかく多くの家財があるので、大きな部屋にラックを並べて整理する予定
見積額を下げるには…内装仕様レベルを下げるとか大工仕事を減らす(間取り変更を減らす等)ことが必要になります。
現行の2F間取りは以下の通りです………
導き出した削減案は以下の通りです。
<客寝室> 右側の現行二室を一室にまとめ、布団などを仕舞えるクローゼットを付ける
==> 納戸に予定していた左側の8畳和室を客寝室とし、既存の押入れ等も含めて和室仕上げ
<ファミリースペース> ==> 中央上、必要最低限の仕様で仕上げ
<趣味室> ==> 中央下、既存の部屋のまま活用
<納戸> ==> 客寝室として一室に改造する予定の右側現行二室をそのまま活用改造&新設窓なし
以上のように、2Fは客寝室と納戸の位置を入れ替え、客寝室のみを和室内装に仕上げ、廊下に相当するファミリースペースは最低限の仕上げ、趣味室と納戸は間取り変更なしでそのまま(実際には耐震改修で触っているところもあり)最低限とすることにしました。
ただし、壁、天井、床などの断熱化や高断熱窓の切り替えは予定通りとします。
この結果、間取り変更箇所が大幅に少なくなり、また内装仕上げも客寝室だけとなるため、大幅な費用削減になりそうです。
この案を工事業者の責任者と現地で打合せしてアドバイスも受けながら合意し、再作図&見積もりしてもらうこととなりました。
ともかく、“省エネ&自家消費型創エネ”、“夏涼してくて冬暖かな家”という譲れない点を確保しつつ、見積額低減を検討してみました。
さて、どうなるか…
リノベーション 見積額削減検討 結果 ― 2023年01月28日 08:35
昨日、先に検討した見積額削減案の再見積の説明を受けました。
先週土曜日に現場で打合せをしてから1週間足らずでまとめ上げてくれました。
結果・・・約200万円弱の削減を達成!♪
バスタブを鋳物ホーローにグレードアップしてかなりの価格がupしているはずなので気になってはいました(^_^;
が、やはり2Fの客寝室と納戸の位置変更による間取り変更最小化と内装仕上げの一部簡素化による資財&大工仕事の削減が大きな効果を上げたようです。
現行の2Fの間取りは以下のようですが・・・
新たな2F改修案は・・・
で、
<客寝室> ==> 納戸に予定していた7.5畳和室を拡張して9.5畳の客寝室とし、既存の押入れ等も含めて和室仕上げ
<ファミリースペース> ==> 廊下とし、必要最低限の仕様で仕上げ
<趣味室> ==> 既存の部屋のまま活用
<納戸> ==> 現行二室をそのまま活用 廊下との境はアコーディオンカーテン 改造&新設窓なし
としました。
こだわりの高断熱&高気密の仕様と太陽光発電&蓄電池システム、床暖房と高断熱窓の導入はそのままということで“省エネ&自家消費型創エネ”や“夏涼しくて冬暖かな家”を確保し、いよいよ第二弾のフルリノベーションの契約を結ぶことにしました。
浮いた約200万円弱は予備費としてストックしておきます(^_^)
ところで、今日また新たな補助金の情報が入りました。
現在、利用予定の補助制度は・・・
①木造住宅の耐震診断・耐震改修の支援制度
これは現在進めている耐震改修に適用されるもので、令和4年度分として既に申請済みです。
補助金額:上限100万円
②住宅の断熱性向上のための先進的設備導入促進事業
これは令和5年度に新設されたもので、断熱窓への改修による即効性の高いリフォーム推進です。
補助金額:上限200万円
今回のリノベーション内容はいずれも上限額に対応できる内容となっています。
今回新たに入った情報は・・・
③高効率給湯器導入促進による家庭部門の省エネルギー推進事業費補助金
これも令和5年度に新設されたもので、家庭でのエネルギー消費量を削減するために必要な⾼効率給湯器の導⼊に係る費⽤を補助です。
補助金額:5万円/台 導入予定のエコキュートが該当
①②はかなり高額で大変助かります(^_-)
③は少額ですが、タイミングはGoodです(^_^)
この他に会社の助成金もあり、今回の削減と合わせて大変助かります。
いずれにしても、今回の耐震改修&フルリフォームは資財コストや諸費用高騰という悪いタイミングであったのですが、国の住宅省エネ化政策強化による補助事業制度がここにきて目白押し、かつ補助金額の高額化があり大変頼もしい限りです♪
リノベーション 間取り確定 ― 2023年01月29日 08:53
現在、2月下旬完了を目指して先行で耐震改修工事を進めています。
が、ここ数日の厳しい寒波(先日−6〜8℃)で建て直しのお風呂&洗面・洗濯室の基礎コンクリート打ちができず、工事が停滞しています。
来週には足場を組み、工事部分を囲み込んで再開する予定になっていますが、天候次第になっています。
対策として寒中コンクリートを使うそうですが、気温次第だそうで少々やきもきしています。
何故なら、耐震改修補助を受けるためには2月末までに完成検査を受けなければならないからです・・・
どうなるか・・・
さて、リノベーションの本工事は耐震改修検査が合格した後の3月から開始する予定です。
現在ようやく見積額削減検討が終わり、間取りが確定しました。
これからまだ細かな仕様や配置など決める必要がありますが、先ずは間取り決定と言うことで次の段階に入ります。
ここでは決まった間取り(Before→After)を紹介します。
【1F】
1Fは以前に紹介した間取り案と大きく変わりませんが、開口部(窓位置、勝手口有無)や設備配置を若干変更しています。
左下に玄関&シューズクローク、トイレがあり、玄関を上がって右にLDK、上に和室への入り口があります。
家の中央は約17畳のLDK、左中央に仏間と床の間のある和室、左奥に洗面・洗濯室とお風呂、右に私と妻の寝室があります。
妻はタンス類を数竿持っているので、寝室にそれらを納める大きめのクローゼットを、私はクローゼットは小さめでその代わりに書斎コーナーを寝室に設けています。
LDKには床暖房と大型エアコン、寝室には小型のエアコン、お風呂には暖房乾燥機を設置しました。
各部屋の断熱強化のために1Fの窓は全てLow-eトリプルガラス樹脂サッシとしています。
なお、玄関や各部屋へは将来も考え車椅子でも出入り可能なように、開口部を広めの引戸にしました。
特に玄関は開口部を広く取れる3連スライド式の引戸にしました。
LDKの上には小さいながらも吹抜を設け、窓からの採光を強化し、階段と2F空間に繋がっています。
家の裏には屋根を張り出してエコキュートやエアコンの室外機など屋根下に収まるようにしました。
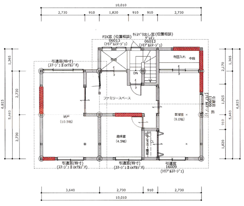
【2F】
2FへはLDK内に設けた階段から上がりますが、登り切ったところにドアを付けました。
また吹抜の上部には1F空間と区切れような収納式間仕切りを設け、階段ドアとともに1Fと2Fとの空間を区切ることが可能となっており、2Fの夏の熱気、冬の冷気が1FLDKに影響しにくいように工夫しました。
階段ならびに吹抜には上部にLow-eトリプルガラス樹脂サッシの三連窓を付け、断熱強化とともに1Fへの採光も意識しました。
また、階段ドアには小さな孫の安全ガードの役目も・・・
マンション住まいの小さな孫達は階段が好きなようで、上り下りをしてちょいと目を離せませんからね(^_^)
階段を上がってドアを開けると4〜5畳ほどの廊下がありますが、元々は8畳ほどのファミリースペースとして考えていたところです。
孫達の遊び場かと(^^ゞ
廊下の左側には9.5畳の和室を設け、時々遊びに来る娘達家族の寝室としました。
それぞれ孫が3人づついるので、このくらいの広さであれば布団を引いても何とかなるでしょう(^_^)
中央下は4.5畳の趣味部屋です。
この部屋は私がいろいろ散らかしても良いように、内装はほぼ元のまま気軽に利用する予定です(^^;ゞ
右側は納戸で、内装はほとんど触らずスチール棚を並べて利用する予定です。
何分、親父が残した遺品やら家財が山のようにあるので、整理して納め、そのうちに整理・処分していきたいと思ってます。
なお、2Fは日常の生活では使用頻度は少ないため、見積額圧縮の関係もあり窓は全てLow-eペアガラス樹脂サッシとしました。
1FのLow-eトリプルガラス樹脂サッシより断熱性能が若干落ちるかと思いますが、壁、床、天井の断熱を強化しますから、使用頻度を考えると十分かと思っています。
エアコンは客寝室だけに付け、趣味部屋には最初は付けない予定です・・・ここに籠もるつもりもないので様子を見ようかと(^^ゞ
リノベーション 外観 ― 2023年01月30日 07:25
間取りが確定し、窓位置も決まりました。
外観の立面図を修正したのが以下のようになります。
基本的に、お風呂・洗面・洗濯室をブロック積みモルタル造りから木造に建て直す以外は骨格・構造はそのままです。
ただし、屋根は今の瓦葺き全てを軽量金属屋根に葺き替え、その上南面に3.6kWの太陽光発電を乗せ、5.6kWの蓄電池を設置します。
売電と言うより最初から自家消費型創エネシステムを立ち上げて少しでもエネルギー高コスト化へ今から手を打っておきたいと思っています。
また、家裏(北東面)の一階屋根を伸ばして中央にエコキュートやエアコン等の室外機を軒下に集約するようにしました。
外壁は金属サイディングとしますが、これから仕様を相談して決めていきます。
さて、ぱっと見で気づくところは・・・窓でしょうか・・・
今回、特に生活のメインである1Fの窓を意識的に考えました。
大開口の掃き出し窓を採用していません。
一般的な住宅での熱の出入りは窓から50〜70%強にもなると言われています。
“夏涼しくて冬暖かい家”を実現するためには、壁、床、天井の気密・断熱化も必須ですが、窓面積の縮小化、断熱化が一番高効果的であると言われています。
今回、1Fの窓は全てLow-eトリプルガラス樹脂サッシを、2Fには基本Low-eペアガラス樹脂サッシを採用し、ガラス間はアルゴンガス封入タイプです。


より断熱性能の高いクリプトンガス封入タイプもあるのですが、高価なのでそこまで必要は無いだろうとの判断です。
窓枠はコスト面からアルミ・樹脂複合サッシも考えたのですが、断熱性能や結露対策も踏まえて全て樹脂サッシとしました。
ただ、大開口の窓が無いと言うことで、1FLDKへの採光が少ない対策として一部を吹抜として2階部分の窓から採光を増やす工夫をしました。
ちょうど2Fは廊下(以前のファミリールーム)なので床の一部を採光床にしようかと思いましたが、やめて吹抜を採用しました。
が、よく聞く「吹抜は冬寒い!」という対策として、吹抜の上部には1F空間と区切れような収納式間仕切りを設け、階段ドアとともに1Fと2Fとの空間を仕切れる構造としました。
新築とは違い、高気密化・高断熱化は少々緩いと思うので可能な限り考慮しましたが、ドイツ生活では築100年越えでも素晴らしい住環境を経験したのが大変参考になりました。
あっ、そうそう、玄関ですが、屋根下にポーチを設けて玄関戸を奥に引き込み、戸は開口部が大きく取れる三連引き戸としました。
広めの開口で自転車や車椅子の出し入れがスムースにできるように配慮しました。
引き戸の方が小さい子供など少ない力で開け閉めできますしね(^_^)
ただ、断熱性がドアより劣ると考えられるので、ペアガラスで断熱性を考慮した製品をチョイスしています。
気密性がドアより劣るかもしれませんが・・・
さて今回、単なる内部をリフォームするのではなく、気密・断熱化を強化するためほぼスケルトンフルリノベーションとし、オール電化、床暖房、自家消費型創エネシステムを導入したため、正直建て替えと変わらないくらいの投資になりました。
これは、いらぬ負動産を増やさず今ある資産を有効に使い切って私の代で綺麗に仕舞って行きたいと考えたからです。
今住んでいる家も今回のリノベーションが終わって引越した後、解体して整理し駐車場として利用し、今のうちに子供達に負担をかけないように処分しやすいようにしておきたいと思っています。
もっとも、田舎なので不動産処理がうまくいくかどうかは・・・怪しい限りですが・・・
この他に畑や山林もありますし・・・(^_^;
残された負動産処理は大きな課題です、はい・・・










最近のコメント